Aventura Condo by the Bay
Written By Anthony Carrino
Services Provided by AC/DC
Space Planning, Design Drawings, Interior Design, Project Mgmt, & Procurement
Before Images and Design Documents below.
View fullsize

Existing Conditions
View fullsize

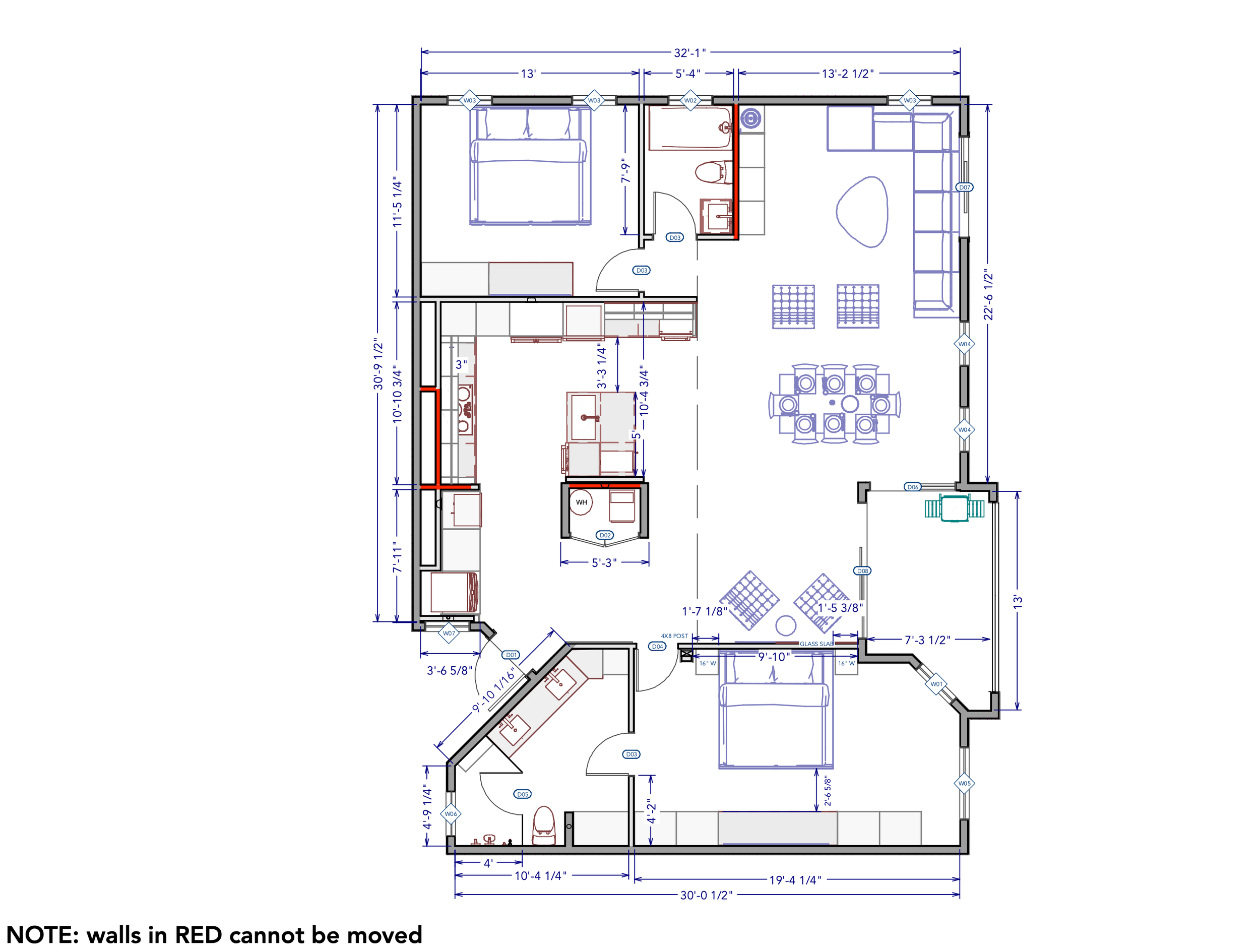
New Space Plan
View fullsize

Framing Plan
View fullsize

Switching Plan
View fullsize

Linear LED Ceiling Light Design
View fullsize

Mechanical Plan
View fullsize

Kitchen Plan